autor: BIRO
projektni tim: saša košuta, mario kralj, dora lončarić, hrvoje arbanas
fotografije: Damir Žižić
klijent / investitor: Senor
lokacija: Ulica Eugena Kumičića, Zagreb
status: realizacija
godina projekta / izvedbe: 2017
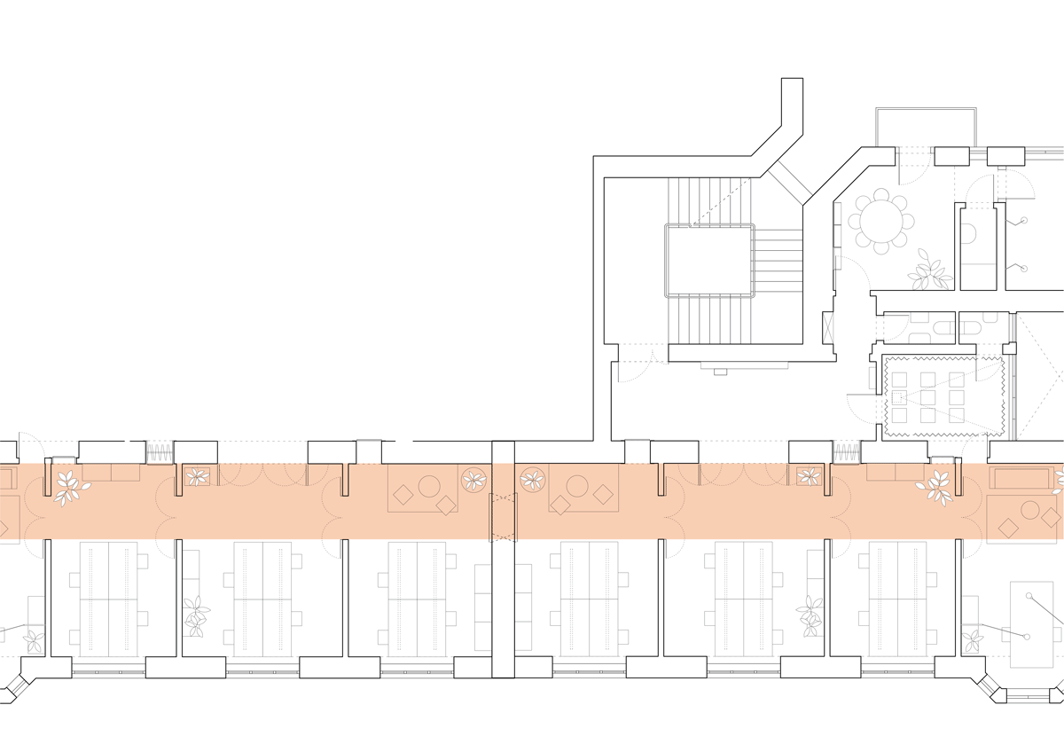
Stvaranje prostora različitih karaktera u kojima se odvijaju kreativni i ne-kreativni dijelovi Señorove svakodnevice, a koji odgovaraju Señorovom identitetu, temeljna je ideja ovog interijera. U bogato dimenzioniranom stanu u zgradi arhitekta Viktora Kovačića stvoreno je nekoliko duhovitih prostornih dosjetki, istovremeno poštujući duh građanskog stana.
Oblici rada u uredu se kroz dan izmjenjuju, tako se izmjenjuje i potreba za različitim prostorima. Drugačiji karakteri, a time i način rada, dočarani su upotrebom boja, suprotstavljenih u istom prostoru sa jasnom granicom: bijela boja je zona ‘klasičnog’ rada za računalom, dok su roze niše opremljene sofama i foteljama za opušteniji rad i kreativne sastanke. Granica između dvije zone (dvije boje) je amfilada, vrijedan element građanskog stana koji je produžen u beskonačnost ugradnjom dvostrukog zrcala na krajevima.
Monokromatska plava soba, dodatni je prostor za ‘drugačiji’ rad. Namijenjena je individualnom radu, manjim sastancima, odmoru ili skajpanju; ujedno je i veliko spremište uredskog materijala ispod mekane površine tepihom tapeciranih poklopaca i zida. Umjesto klasične sobe za sastanke, izvedeno je Señor Miniplex Cinema. Elementi kino dvorane su primijenjeni u svojim smanjenim varijantama: crvena zavjesa, kino fotelje i crni tepih na podu.











